Ref.: 5636

Apartamento de Obra Nueva para comprar en el Centro de La Massana

Andorra - La Massana | Apartamento

Superficie
110 m2
dormitorios
3
baños
2
Precio

Solicite más información sobre Apartamento de Obra Nueva para comprar en el Centro de La Massana

Ref.: 5636

| 5636

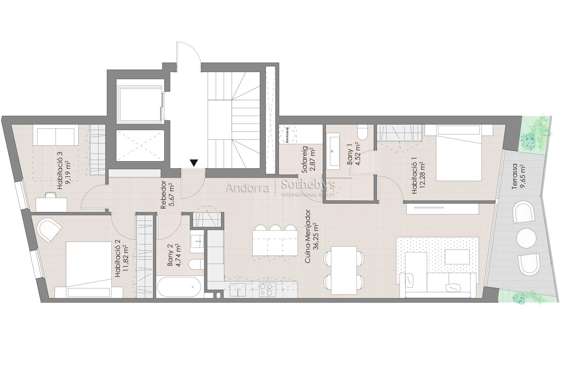
Este magnífico apartamento de obra nueva, en construcción, se encuentra junto a la principal avenida comercial de la Massana, en una zona residencial familiar cerca de la piscina comunal y las pistas de tenis, muy tranquila y perfectamente comunicada. Tiene a disposición todos los servicios necesarios y se encuentra a tan sólo 400 metros del telecabina que permite acceder a las pistas de esquí del dominio de Pal-Arinsal. El piso tiene 110m² distribuidos en un gran salón comedor con acceso a una terraza de 9m², una amplia cocina, integrada en el comedor, equipada con electrodomésticos de gama alta, con sala de lavandería independiente. En la zona de descanso hay 3 habitaciones, una de ellas en suite con baño completo, una doble y otra individual, y las tres con armarios empotrados. También hay un segundo baño completo. La propiedad dispone de una plaza de aparcamiento en el mismo edificio. Orientado a este, el piso disfruta del sol desde las primeras horas de día hasta media tarde, y tiene vistas al Camino Ral, con el río y el valle de la Massana. Este exclusivo apartamento, perfectamente situado, es una excelente inversión para una familia que busque una residencia de prestigio en el centro de una ciudad con el dinamismo de La Massana y quiere disfrutar de su gran oferta de actividades con todo el espacio y las comodidades necesarias.

Características

  • Lavadero
  • Visibilidad
  • Doble vidrio
  • Armarios empotrados
  • Soleado
  • Terraza
  • Parking
  • Ascensor
  • Vistas a la montaña
  • Transporte público cerca
  • Vistas ciudad
  • Zona verde

Distancias

A menos de 5km

  • Escas 1,4 km
  • Sispony 2,0 km
  • Aldosa (L' ) (La Massana) 2,3 km
  • Erts 2,4 km
  • Ordino 2,6 km
  • Anyós 2,8 km
  • Sornàs 3,5 km
  • Xixerella 3,8 km
  • Ansalonga 4,1 km
  • Arinsal 4,1 km
  • La Cortinada 5,0 km

A menos de 10km

  • Arans 5,9 km
  • Pal 6,1 km
  • Molleres 6,9 km
  • Llorts 7,6 km
  • Santa Coloma 8,6 km
  • Encamp 8,8 km
  • Vila 8,9 km
  • Les Bons 8,9 km

A la capital

  • Escaldes-Engordany 5,5 km
  • Andorra la Vella 5,9 km

Siguientes pasos

Contacte con nuestro equipo de consultores inmobiliarios para saber más sobre esta exclusiva promoción.

Solicite más información sobre Apartamento de Obra Nueva para comprar en el Centro de La Massana

Ref.: 5636