Ref.: 6394

Attached chalet to buy in La Massana

Andorra - Sispony | Attached

Area
390 m2
bedrooms
4
bathrooms
3
Price
1.950.000 €

Request more information about Attached chalet to buy in La Massana

Ref.: 6394

| 6394

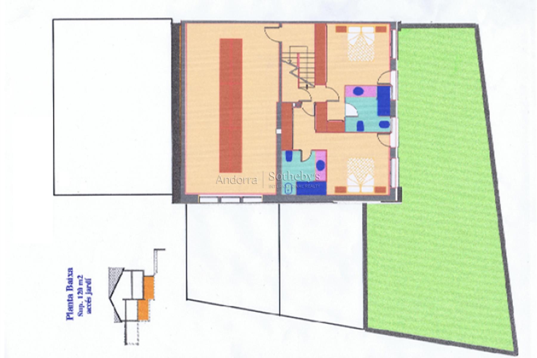
Discover this impressive house located in La Massana on a 400 m² plot that combines modern design, comfort, and Zen style. With a total area of 390 m² spread across three floors, this property offers spacious, highly finished spaces perfect for those seeking quality of life and privacy. Main Layout and Features The upper floor of 133 m² features a large living room with a central fireplace and double ceiling height. The spacious industrial-style kitchen has direct access to a south-facing landscaped terrace, ideal for relaxing and enjoying quiet moments. Below it, through the garden and the street entrance, also of 133 m², there is a master bedroom with a dressing room, private bathroom, large shower, and Jacuzzi for relaxation. This level also includes a private parking area with space for two cars, as well as a dedicated space for the boiler and water tank. The lower floor, of 124 m², includes two bedrooms with garden access, two full bathrooms, and a large versatile room with big windows overlooking the side garden. This room is ideal for sports, study, or meeting spaces. Exterior Spaces The 252 m² gardens surrounding the house have been revitalized following the Japanese Zen aesthetic known as Kare Sandui, creating an atmosphere of calm and harmony. These gardens share space with two communal garden terraces on the south side, perfect for enjoying the sun and nature. Other Notable Details The house has been renovated with thermal insulation that includes Tecnol laminates and Placo windows, along with wooden floors that add warmth. However, some areas could benefit from a renovation. The heating system combines radiators and underfloor heating in the hallway and master bedroom, providing a comfortable and efficient distribution. This home combines modernity and tranquility in an enviable natural environment in La Massana, making it an ideal choice for families seeking quality of life in a welcoming and exclusive setting.

Features

  • Built-in wardrobes
  • Sunny
  • Terrace
  • Heating
  • Parking
  • Garden
  • Mountain View
  • Green area
  • Hot water

What do we find?

Less than 5km

  • Anyós 1.8 km
  • La Massana 2.0 km
  • Escas 2.0 km
  • Erts 4.0 km
  • Ordino 4.2 km
  • Aldosa (L' ) (La Massana) 4.7 km

Less than 10km

  • Sornàs 5.1 km
  • Xixerella 5.5 km
  • Ansalonga 5.7 km
  • Arinsal 5.8 km
  • Molleres 6.3 km
  • La Cortinada 6.7 km
  • Arans 7.5 km
  • Pal 7.7 km
  • Santa Coloma 8.1 km
  • Encamp 8.2 km
  • Vila 8.3 km
  • Les Bons 8.3 km
  • Llorts 9.2 km

To the capital

  • Escaldes-Engordany 4.9 km
  • Andorra la Vella 5.5 km

Next steps

Contact our team of real estate consultants to learn more about this exclusive development

Request more information about Attached chalet to buy in La Massana

Ref.: 6394